Descrizione
In a highly sought-after location known for its tranquility and natural beauty, within the Pian di Spagna Nature Reserve, we offer a charming semi-detached house on three sides, with private land extending to the banks of the Mera River.
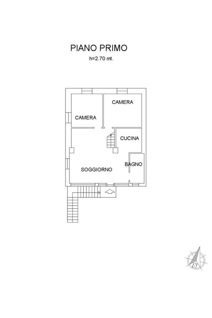
The property is arranged over three levels, with a total living area of approximately 230 sqm, featuring bright, well-laid-out, and welcoming interiors.
On the raised ground floor, you’ll find the main entrance, a living room with fireplace, a spacious kitchen with large windows overlooking the lake, two bedrooms, and a bathroom.
The attic floor, currently used as a study or additional bedroom, includes a second bathroom. Ideal as a relaxation area or guest room.
On the ground floor, there is a tavern-style room and a large storage area, perfect for use as a hobby room, laundry, or storage space.
Outside, approximately 200 sqm of private land run along the riverbank, offering direct contact with nature and captivating panoramic views.
Access to the property is via the pedestrian and cycle path, while public parking is conveniently located just 70 meters away.
A unique opportunity, perfect for those seeking a peaceful home surrounded by greenery, with lake views and generous indoor and outdoor spaces — ideal for enjoying Lake Como living in harmony with nature.
Asking price: € 350,000 – Reference Code: V001573

























